Beschrijving
Privé urbanisatie met moderne appartementen met in één, twee of drie slaapkamers en één of twee badkamers in Villlajoyosa.
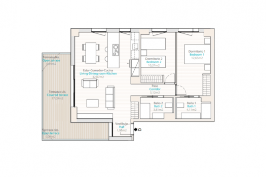
Grote woonkamer met keuken volgens een open concept. De keukeninrichting is modern vormgegeven en wordt opgeleverd met boven- en onder keukenmeubilair voorzien van aanrechtblad, keramische kookplaat en afzuigkap.
De slaapkamers zijn ruim, bieden veel lichtinval en zijn uitgerust met ingebouwde kledingkasten. De badkamers zijn uitgevoerd met porseleinen sanitair en worden compleet geleverd met wastafel en badkamermeubel.
De buitenruimtes bestaan uit drie grote infinity pools, jacuzzi, barbecue zone, groene zones, fitnessruimte, minigolf, co-workingruimte en gastronomische kamer. De appartementen zijn inclusief parkeerplaats en berging.
Verder voorzien van een aerothermisch systeem voor warmwatervoorziening voor huishoudelijk gebruik, pre-installatie van airconditioning en dubbele beglazing op de balkons.
Dit project omvat een “app” waarmee u de bouw kunt volgen en over alle documentatie van de appartementen beschikt.
Dit project is gelegen aan de Costa Blanca noord in Villajoyosa, op slechts 6 minuten van het centrum; verrassend met de kleurrijke straten, het rijke culturele erfgoed en de ontspannen levensstijl. Daarnaast op nog geen 15 minuten van Benidorm, internationaal bekend om zijn stranden en levendige sfeer, en met uitstekende verbindingen met de luchthaven van Alicante of met prachtige plaatsen aan de Costa Blanca zoals Altea, Calpe, Jávea of Denia.


























































































































































